Digital Twin Model for Renovating Existing Building Estimates

Contact Us

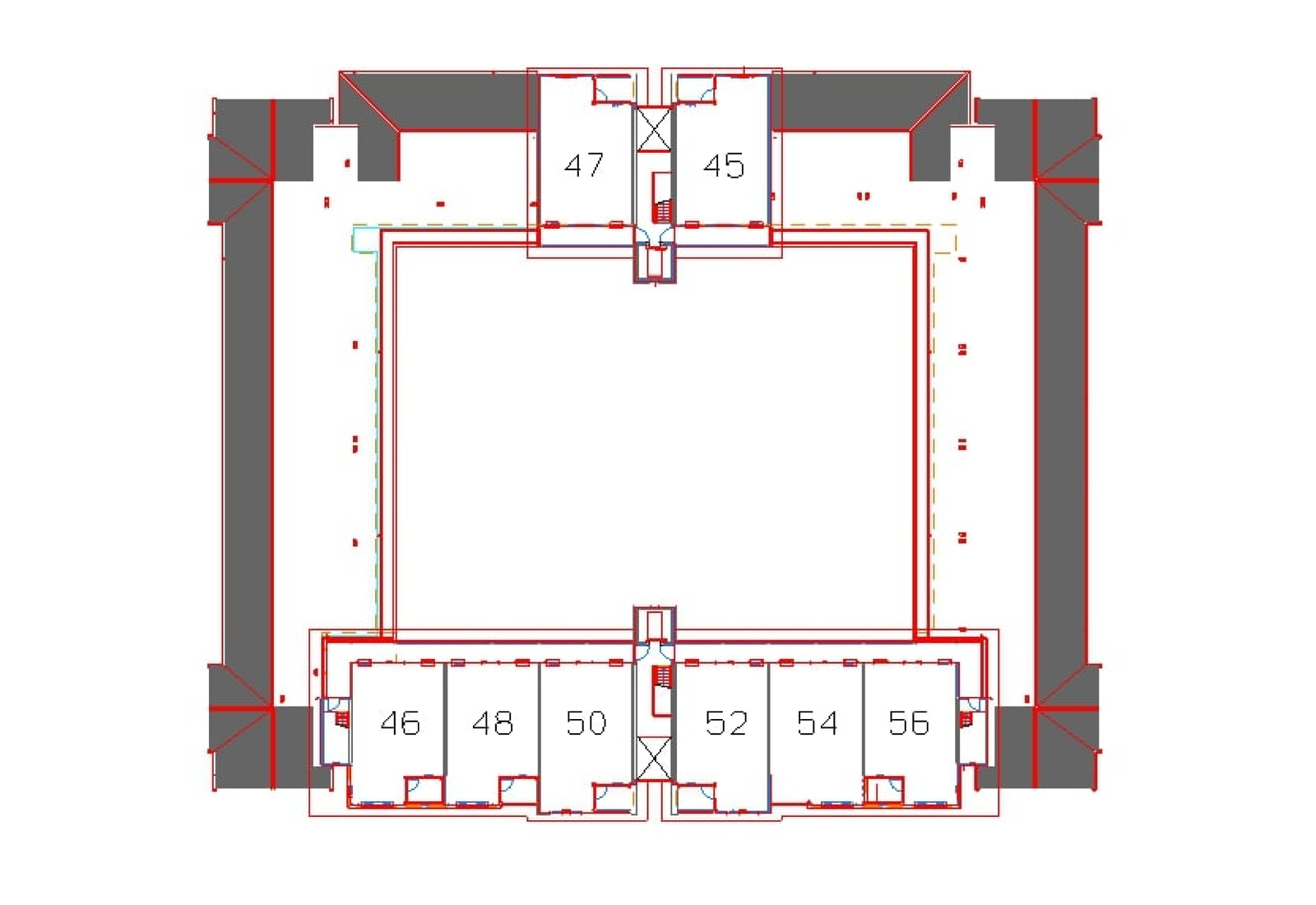
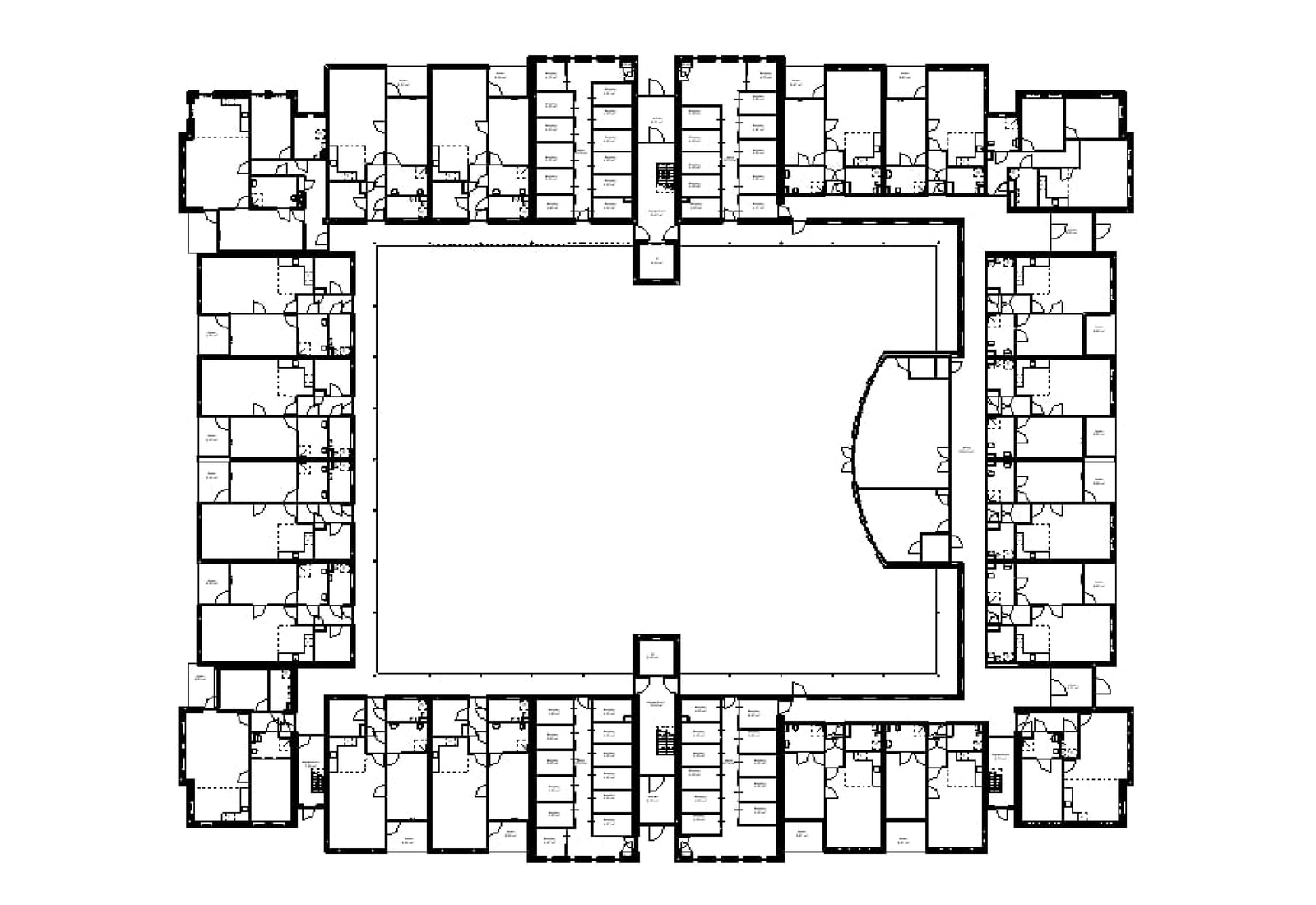
Digital twin model for the existing building which is to be renovated for accurate estimates of construction costs & timelines

Our team developed a high precision architectural digital twin for a residential building in the Netherlands, ensuring NEN 2508 compliance to optimise facility and space management.

Digital twin model for the existing building which is to be renovated for accurate estimates of construction costs & timelines

The Challenge

  • Creating an exact digital replica that mirrors the physical condition of an existing residential structure in the Netherlands.
  • Adhering to strict NEN 2580 measurement standard required for Dutch building regulation and space reporting.
  • Consolidating fragmented architectural data and legacy documentation into a unified, data rich 3D environment.
  • Ensuring the model is functionally optimized for operational facility management.
  • Achieving a high level of development to capture structural details necessary for long term maintenance.
  • Bridging technical gap between architectural modeling and the client existing asset management software system.

The Solution

  • Constructed a comprehensive architectural BIM model to serve as a living digital twin for the residential facility.
  • Integrated NEN 2580 measurement protocols into the workflow for automated and accurate area calculations.
  • Developed a centralized digital repository containing all essential building information, components and technical specifications.
  • Performed meticulous data validation against survey records to ensure 100% digital accuracy.
  • Optimized the BIM model for seamless data exchange with facility management and maintenance software.
  • Established structured information for easy updates and scalability of the building’s lifecycle.
Precision BIM & Revit Solutions
Precision BIM & Revit Solutions
Precision BIM & Revit Solutions
Precision BIM & Revit Solutions
Precision BIM & Revit Solutions
Precision BIM & Revit Solutions
Precision BIM & Revit Solutions

The Result

  • Reliable digital twin that significantly streamlined maintenance scheduling and daily building operations.
  • Achieved full compliance with Dutch regulatory standards for transparent and precise space management.
  • Reduced operational overhead by providing the management team with instant access to accurate building data.
  • Enhanced strategic decision making through clear visualization of floor areas and internal asset distributions.
  • Improved accuracy in leasing and space allocation thanks to precise, NEN 2580 certified measurements.
  • Delivered a futures proof digital asset that reduces information loss during property handovers or future renovations.