Shop Drawing Services | Outsource Shop Drawings
UC
Shop Drawing Services

The core objective of shop drawing services is to transform design into understandable or actionable information for professionals like manufacturers, fabricators, and contractors. This improves the construction process and reduces the scope of errors in the project, resulting in better efficiency and success. Shop drawings can be defined as detailed illustrations of the construction that represent precise infrastructure fabrication, installation, and construction requirements.

The entire process is used for pre-construction stages that showcase multiple elements of the construction project, like size, shape, material, installation process, and more. Architects, engineers, and contractors review shop drawings to get clarity on construction techniques. It bridges the gap between the design and the actual construction process. Being a crucial role player in the process, shop drawing services provide many benefits;

Better Understanding of the Project

Reduce Complication

Better Understanding of the Project

Comprehensive Information

Better Understanding of the Project

Accurate Cost Estimation

Better Understanding of the Project

Better Documentation

Shop Drawings Construction for Engineers and Contractors

Shop Drawings Construction for Engineers and Contractors

Shop drawings are a major part of any construction project. These detailed, specific drawings represent size, dimensions, materials, and other fabrication drawing details. Because of their sheer importance, shop drawings are a communication tool that facilitates a better understanding of project specifications and other drawing details.

UniquesCADD has a dedicated team of experts who use the latest software and technology to provide shop drawing services for all projects. Our global footprint has allowed us to deliver exceptional project results accurately and successfully while strictly adhering to requirements and region-standard guidelines. Shop drawing constructions are categorized into various other services, accurately offered by UniquesCADD’s team of professionals.

Array of Shop Drawing Services at UniquesCADD

UniquesCADD is proficient and experienced in outsourcing shop drawing construction services for various projects, including renovation, new projects, and commercial and residential contracts. Using the most recent software and technology, our experts aim to deliver technical drawings with specifications that enhance the process for manufacturers and fabricators. With talented resources, we offer a variety of shop drawings for construction projects.

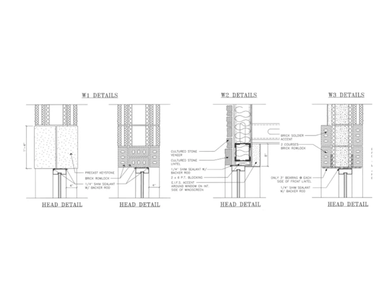
Architectural Shop Drawings

Architectural Shop Drawings

In most construction projects, architectural millwork shop drawings are common among general contractors, interior contractors, millwork fabricators, and more. This promotes accurate fabrication processes with precise detailing on size, shape, location, and other details. Architectural millwork shop drawings include multiple related services, including;

  • Interior Shop Drawings
  • Masonry Shop Drawings
  • Millwork Shop Drawings
  • Modular Shop Drawings

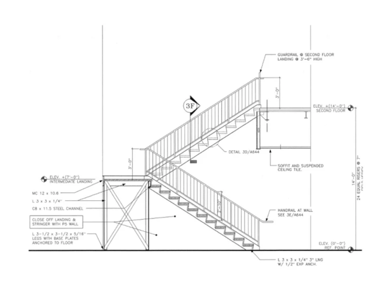
Structural Shop Drawings

Structural Shop Drawings

The structural phase is one of the significant construction phases. Shop drawings for the structural stage include elevation sections and detailing of structural components and layout. Structural shop drawings construction services include services;

  • Modular Shop Drawings
  • Coordinated Structural Shop Drawings
  • Steel Shop Drawings
  • Precast Shop Drawings
  • Rebar Shop Drawings

MEP Shop Drawings

MEP Shop Drawings

As MEP is the most pivotal component of any infrastructure, shop drawings for MEP enhance coordination and minimize the scope of errors or clashes by providing comprehensive specifications for the installation and fabrication of each discipline. The following are services related to MEP shop drawings;

  • Mechanical Pipe Shop Drawings
  • Duct Shop Drawings
  • Hanger Layout Drawings
  • Builders Work Drawing
  • Medical Gas Drawings
  • Electrical Shop Drawings
  • Plumbing Shop Drawings

Choose Us as an Outsourcing Shop Drawing Partner

Choose Us as an Outsourcing Shop Drawing Partner

UniquesCADD establishes long-term relationships by providing end-to-end, high-quality shop drawings completed within the desired deadlines. Our extensive experience and foot on international soil make us a top outsourcing firm with expertise in shop drawing services. We have impressively completed several projects from the USA, UK, and Netherlands, ranging in complexity and type of project. Partner with UniquesCADD can be beneficial in multiple ways;

  • Extensive Pricing Plans
  • Quick Turnaround Time
  • Latest Use of Technology and Software
  • Experienced Workforce

Our Expertise

With an extensive range of shop drawing services, our team of professionals offers high-quality outcomes within a quick turnaround time and uses cutting-edge technology. Well-versed in industry standards and codes, UniquesCADD provides shop drawings for various sectors.

Commercial Building

Commercial Building

Educational Institutes

Educational Institutes

Residential Building

Residential Building

Hospitals and other service facilities

Hospitals and other service facilities

Historical buildings

Historical buildings

Infrastructure & Engineering

Infrastructure & Engineering

Our Projects

Discover more projects on Shop Drawing Services and how our proficient team have delivered up to the mark project delivery that fulfilled our clients' demand.

Architecture BIM Services & Visualization for an Institutional Building in Netherlands

Location : Netherlands

Scope : Digital twin creation, facility management, renovation planning

Project Type : Educational Institution (School)

Architecture modelling as digital twin for Facility management of a Residential tower in Netherlands

Location : Residential tower in the Netherlands

Scope : Conversion of hand-drafted PDFs to a detailed digital model, creation of a digital twin for facility management, and provision of construction documentation for targeted renovations.

Special Features : Smart building integration, CGI for renovation visualization, and detailed facility data.

Digital twin model for Facility & Space management

Location : Rotterdam

Type : PDF to BIM

Scope : Built a BIM model that can serve many purposes—from sustaining the structure to guiding smart building plans.

Renovation of Residential House Including Interior designing

Client : UK-based client

Type : Residence Renovation

Services Provided : CGI, Walkthrough, Conceptual Interior Design

Deliverables : 360 Images, Walkthroughs, CGI, Conceptual Interior Desig

previous arrow
next arrow
Architecture BIM Services & Visualization for an Institutional Building in Netherlands
Architecture modelling as digital twin for Facility management of a Residential tower in Netherlands
Digital twin model for Facility & Space management
Renovation of Residential House Including Interior designing

Frequently Asked Questions

How many types of shop drawing services UniquesCADD offers?

UniquesCADD offers various types of shop drawing services, following are;

  • Architectural Shop Drawings
  • Structural Shop Drawings
  • MEP Shop Drawings

How outsourcing shop drawing services help construction projects?

UniquesCADD establishes long-term relationships by providing end-to-end, high-quality shop drawings completed within the desired deadlines.

What is the pricing structure for shop drawing services?

Our prices begin at $10, depending on the project size and requirements.

Which technology UniquesCADD uses for shop drawing services?

UniquesCADD uses the latest technology and software. Our team of experts uses AutoCAD and Revit for shop drawing services.

What is the turnaround time for shop drawing services?

The time required to complete the shop drawing project varies based on its complexity and requirements, although our team ensures that the project is delivered within the preset deadline.

How can I get in touch with the UniquesCADD team?

To get in touch with us, email us your query at info@uniquescadd.com.

Redefine Excellence in Your Projects with Our BIM Expertise

    We sign NDA for all our projects.