To install three disciplines in the building design MEP fabrication drawings serves as a blueprint that prevent errors, clashes or any potential risk before the installation process begins. MEP drawings service here become an important process in the pre construction stage in order to maintain the accuracy, efficiency and safety of the infrastructure.
As a team of experts, we understand the importance of accurate and coordinated shop drawings to complete construction projects without clashes. With our array of MEP shop drawings services, we provide comprehensive and detailed solutions, ensuring the smooth execution and installation of MEP and HVAC components. The following are the variety of MEP and HVAC shop drawing services at UniquesCADD.
At UniquesCADD, we provide assembly, casting, and sheet metal drawings to engineers, consultants, and fabricators for easy and seamless installation.
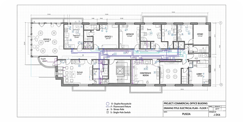
With the exact dimensions of electrical equipment and a detailed layout plan by our team of experts, we can make the construction process accurate without any scope of errors or clashes.
Plumbing shop drawings are the technical drawings for water pipes, with pipe dimensions, fixtures, and appropriate color coding of pipes. Our detailed technical plumbing shop drawings offer efficient fabrication and installation processes of plumbing systems.
The drawing provides essential detailed information about how ducts and other necessary equipment should be placed in the building. Hence MEP HVAC shop drawings are crucial for engineers to plan the ducts in the most desirable location.
MEP shop drawing services facilitate the accurate installation of building components. Moreover, it is the backbone of the construction, be it commercial, residential, or any other infra project. MEP drawings offers various benefits, as follows;
HVAC shop drawings and MEP drawings add solidarity to architectural construction. They help in the fabrication, installation, assembly, manufacturing, and maintenance of the crucial components, including the building’s mechanical, electrical, and plumbing. Outsourcing with UniquesCADD for MEP drawings can offer multiple benefits from a team of experts.
UniquesCADD is proficient in providing detailed, accurate, and high-quality MEP drawings by a team of professionals within the desired timeline and ensuring to incorporate client’s requirement using cutting edge technology that speeds up the process. As a team, we provide MEP Shop drawing and HVAC Shop drawings services for the following sectors;






Discover more projects on MEP Shop Drawing Services and how our proficient team have delivered up to the mark project delivery that fulfilled our clients' demand.
What do MEP shop drawing services include?
MEP shop drawing is included with multiple aspects of MEP about pipes, valves, sprinklers and more with HVAC maintenance and installation also included. It also includes installation details and dimensions to help contractors.
How can I get in touch with UniquesCADD MEP drawing services?
To get in touch with us, email us your query on info@uniquescadd.com
How long does MEP drawings take?
It completely depends on the project requirements as permits are required.
What are the benefits of MEP shop drawing?
It ensures the structure system is safe, efficient and stands with MEP standard codes and regulations to avoid any mishappenings.
Can I hire a dedicated team for HVAC shop drawing?
Yes, UniquesCADD certainly offers to hire a dedicated team for particular services to get the project done by professionals and according to the requirements.
How many types of drawings are there in MEP?
It entails electric drawing, mechanical, plumbing along with fire protection drawings and HVAC drawings as well for integration and coordination of the system.