Him Darji
Role of MEP Drafting in Hospital and Healthcare Facility Design
Him Darji
Send Us Your Requirement
The architecture and construction realm has witnessed transformations that have not only led to accurate results but also up-scaled the industry. Modern, sleek design today is a key part of the architecture and construction sector, uniquely blending with sustainability, efficiency, and reliability. Looking back in history, keenly designed architecture is a significant part of the industry as an intricate work of art for new AEC professionals.
AEC landscapes have adopted and advanced with technology and innovation, replacing manual approaches and easing complexity. Speaking of complex construction, the healthcare sector entails significant architectural complexity due to different requirements and the utmost accuracy in design. Healthcare facilities such as hospitals, clinics, specialized medical centers (trauma centers, psychiatric hospitals, etc.), research labs, and more.
All these healthcare facilities represent a complex building environment, design, and unparalleled demands compared to commercial or residential infrastructure in the architecture and construction realm. MEP is a key role player that acts as the heart of any infrastructure, enabling it to make the environment livable and comfortable for occupants.
MEP is an evident role player in all types of architecture, but is a major player in healthcare facility construction. Healthcare infrastructure is built differently for various reasons, including patient safety, the use of different materials, efficient design, sanitizers, medical equipment, infection control systems, medical gas supply, and more.
These reasons help give the gist of how crucial it is for AEC professionals to maintain accuracy, efficiency, and reliability in healthcare facility construction. Considering the modern realm and design, hospitals and other healthcare facilities leverage the power of MEP services as mechanical, electrical, plumbing, and fire safety are the lifelines for a dynamic environment in the healthcare construction project.
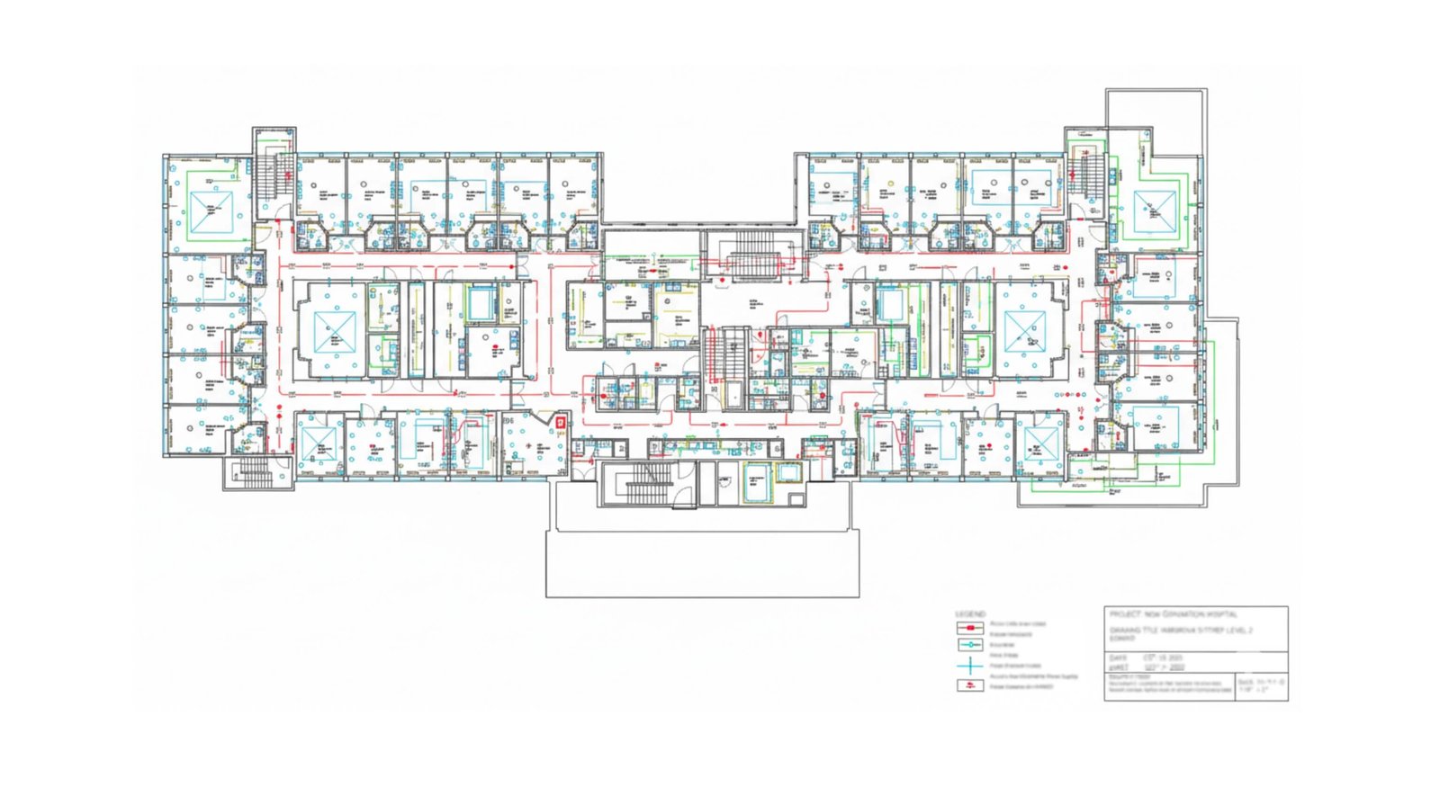
As a matter of fact, MEP is a concept in which every component must strictly harmonize with other components, such as architectural and structural components. Before MEP components are constructed in the BIM model, mechanical, electrical, and plumbing components are drawn with the help of MEP drafting services. These technical sketches and drawings provide a brief overview of how these three fire safety elements will integrate into healthcare facilities’ construction projects.
Nonetheless, mechanical, electrical, plumbing, and fire safety designs play an evident role in meeting dynamic demands and ensuring that healthcare facilities operate efficiently and safely. To begin with, let’s briefly understand mechanical drafting services, along with other disciplines, and how they are key players in the construction of healthcare facilities.
Accurate Hospital Facility Construction with MEP Drafting Solutions
Talk to our Experts
Overview of MEP Drafting
Modern construction is based on the degree of precision, efficiency, accuracy, and coordination in planning and execution. While every stage and every aspect of construction play vital roles, MEP systems or components are the most crucial. Let’s just say a building lacks an adequate power supply, drainage, or proper ventilation. It becomes impossible to live there due to a lack of basic facilities and a high risk of mishappenings. Therefore, this highlights the importance of accurate MEP systems. In any construction project, regardless of type and size, these components must be carefully integrated into the design and construction process. To ensure efficiency and accuracy, MEP drafting services play a significant role, providing a detailed representation of all three components and fire safety.
These technical and detailed drawings act as a blueprint that helps facilitate a seamless construction workflow and efficient team collaboration. With primary integration of MEP BIM modeling and MEP CAD drafting, a detailed and accurate representation of MEP systems allows offering intricate details for AEC professionals to clearly understand the complexity. As a matter of fact, drafting demands for expertise and partnering with a CAD service provider is a holistic approach for precision and efficiency.
CAD drafting is the primary step in creating detailed technical sketches; however, it requires proficiency with software and expertise to achieve desired outcomes. MEP drafting services here include 2D and 3D detailed drawings for the design and installation of all components. Utilizing advanced software and tools, mechanical, electrical, and plumbing drafting is represented with precision and clarity to integrate with architectural and structural designs. As the name suggests, there are three main key aspects, following are;
- Mechanical drafting service
- Electrical drafting service
- Plumbing service
The added component in recent times is fire safety, which usually entails fire alarms, sprinklers, evacuation plans, and more. With the help of accurate MEP drafting services, components are coordinated, synchronized, and seamlessly integrated into building design without interpretation. MEP drafting offers AEC professionals a comprehensive guide and ensures a seamless workflow. Not only this, but MEP drafting offers a variety of advantages, such as:
Key Benefits of MEP Drafting Service
Seamless integration
Construction efficiency
Streamlined construction workflow
Error-free design
Easy and accurate MEP installations
Compliance with industry standards
Coordination between AEC professionals
The list of benefits for MEP drawings can go on endlessly for construction projects. Regardless of project type and size, MEP drafting is a critical role player; however, MEP services for healthcare facilities are a game-changer, ensuring patient safety, seamless hospital workflow, better equipment, and more. Let’s look in detail at how MEP drawings for hospitals, clinics, and other medical facilities play a crucial role.
Healthcare Facilities MEP Drafting Design
Understanding in detail MEP drafting and how it has become a non-negotiable approach for architects, designers, engineers, and other professionals. Constructing any infrastructure involves multiple stages, each demanding accuracy and efficiency. On the other hand, healthcare facility construction is much more complex than residential or commercial construction. Healthcare facilities such as hospitals, clinics, research labs, specialized medical centers, and others have complex environments due to varying infrastructure requirements.
Without a doubt, the healthcare sector is crucial for seamless functioning and, of course, patient care. Inefficient design, planning, and execution can lead to significant loss and can be a matter of life and death. Here, MEP services for healthcare facilities are not only important but a necessity. Imagine an emergency room is far from the ICU; this can be a life-threatening design, inefficient planning, and a lack of precision. To avoid any hassle, having a flawless MEP design is significant and plays a key role. Healthcare MEP drafting services is categorized under three aspects, which include;
- Mechanical drafting services: This is essential to healthcare facilities in providing services that support patients’ well-being and care. These systems entail HVAC, elevators, escalators, medical gas supply, temperature control, air circulation for a comfortable environment, and more. As a matter of fact, MEP services for healthcare facilities efficiently make a comfortable environment by filtering and purifying air, preventing infections, and improving overall healthcare facility design.
- Electrical drafting services: Electrical drafting services are paramount in healthcare facilities, ensuring sufficient power backup for life support, patient monitoring devices, and other electrical equipment. A seamless electrical design is essential for an uninterrupted power supply. Additionally, it entails proper lighting design that significantly contributes to patients’ and healthcare professionals’ comfort.
- Plumbing drafting services: ensuring access to clean water and a water supply is essential for healthcare centers. Any hospital, clinic, or other facility must have clean water for patient safety. Additionally, every hospital, regardless of size, must offer potable water while contributing efficiently to waste management systems. As a matter of fact, having a proper, accurate drainage system, including backflow prevention plans and design, prevents water contamination. The plumbing drafting plan also includes water treatment systems for filtration and disinfection.
These essential components of healthcare MEP drafting significantly contribute to successful healthcare facility construction. Flawless MEP design is key to efficient, safe building environments; however, healthcare MEP drafting services come with their fair share of challenges. Explore them further in detail.
Why Healthcare MEP is Uniquely Challenging
Healthcare facilities operate 24/7, treating patients with varying vulnerabilities and housing highly sophisticated, sensitive equipment. This complexity necessitates an extremely high standard for MEP design.
Common MEP Healthcare Challenges
Infection Control
Stringent Regulations
Patient Comfort
Air Filtration
Lighting Design
Special Waste Systems
Redundancy and Reliability
Equipment Integration
Air Pressure Control
Medical Gas Systems
Specialized Systems
Fixture Selection
Clean Water & Backflow Prevention
- Infection Control: The design must actively prevent the spread of airborne and waterborne pathogens, particularly in sterile areas such as operating rooms and isolation wards.
- Redundancy and Reliability: Power, ventilation, and critical medical gas systems must have robust backup and redundancy to ensure continuous operation during emergencies or power outages.
- Stringent Regulations: Healthcare facilities must comply with rigorous codes and standards, including local building codes and those set by specialized organizations (e.g., ASHRAE, NFPA, FGI Guidelines).
- Equipment Integration: MEP must be seamlessly coordinated with specialized medical equipment, such as MRI machines, X-ray scanners, and surgical lighting, which have unique power, cooling, and spatial requirements.
- Patient Comfort: HVAC systems must maintain precise temperature and humidity levels not just for health but also for patient well-being and recovery.
- Air Pressure Control: Operating rooms and isolation rooms require strict positive or negative air pressure differentials to prevent contaminants from entering or leaving the space. Drafting must detail pressure cascades.
- Air Filtration: High-efficiency filters, such as HEPA filters, are mandated for critical areas, and the ductwork design must accommodate their size and maintenance needs.
- Medical Gas Systems: Drafting includes piping for critical gases like oxygen, medical air, nitrogen, and vacuum. This requires meticulous detail on central storage, distribution lines, alarms, and zone valve locations for safety shut-off.
- Lighting Design: Lighting must be carefully designed—not just for general illumination, but also for specific tasks (e.g., high-luminosity surgical lights) and patient comfort (e.g., dimmer-controlled, ambient lighting in patient rooms).
- Specialized Systems: Drawings must include layouts for nurse call systems, CCTV, public address systems, and advanced data/IT infrastructure necessary for modern diagnostics and patient records.
- Clean Water & Backflow Prevention: Drawings ensure a continuous supply of clean water and detail rigorous backflow prevention assemblies to avoid contamination of the potable water system.
- Special Waste Systems: Piping for laboratory drains and infectious waste disposal requires specialized materials and routing to adhere to environmental and health regulations.
- Fixture Selection: Selection and detailing of hands-free sinks and specialized surgical scrub stations are crucial for infection control.
These challenges are significant and often occur during the construction of healthcare facilities. Given the demand and use of materials, the challenges mentioned above have an efficient solution: MEP drafting services for healthcare building construction. Being a complex and lengthy process, it requires the use of the latest technologies, knowledge of the process and codes, and the ability to understand complexity.
Therefore, outsourcing MEP BIM services and drafting solutions is a holistic approach for AEC firms. Given the complexity of drafting, outsourcing MEP drafting for hospitals offers advantages for AEC firms and enables them to manage other key processes.
Outsource MEP Drafting Design
In the constantly evolving field, keeping track of technologies and software is a must. Outsourcing to a renowned MEP drafting service provider is a comprehensive and beneficial approach. UniquesCADD is a top MEP BIM modeling service, specializing in MEP drafting solutions by use of the latest technologies and a team of professionals. An outsourcing service provider ensures accuracy, efficiency, and reliability.
Conclusion
The successful MEP drafting for hospitals and other healthcare facilities is a delicate balance of engineering, regulatory compliance, and keen attention to detail. It’s about creating an infrastructure that ensures a safe, hygienic, and comfortable healing environment for every patient and staff member. Implementing MEP services for healthcare facilities is key to the successful functioning of infrastructure.




